






Ảnh
Video
VR 360
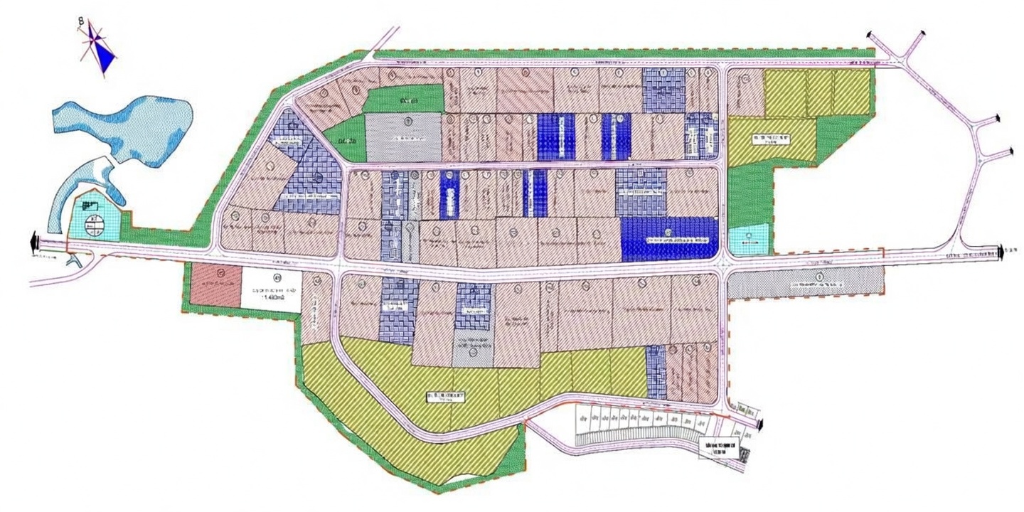
Xem QH
1. Tổng quan về dự án khu công nghiệp Bắc Duyên Hải
Tên dự án: Khu công nghiệp Bắc Duyên Hải
Vị trí dự án: phường Duyên Hải, thành phố Lào Cai
Tổng diện tích: 85 ha
Tổng vốn đầu tư: 1113 tỷ đồng
Loại hình: khu công nghiệp
Thời điểm thành lập: 11/05/2012
Thời hạn vận hành: 50 năm (2012 - 2062)
Mật độ xây dựng: 60%
Tỷ lệ lấp đầy: 98%
2. Vị trí địa lý
Khu công nghiệp Bắc Duyên Hải nằm trên địa bàn phường Duyên Hải, thành phố Lào Cai, giữ vai trò kết nối giữa trung tâm thành phố với khu thương mại Kim Thành. Nhờ vị trí này, khu công nghiệp rất thuận lợi cho việc bố trí các kho trung chuyển, phát triển sản xuất vật liệu xây dựng cao cấp, cơ khí sửa chữa, hàng thủ công mỹ nghệ và các ngành tiểu thủ công nghiệp khác. Cụ thể:
Phía Bắc giáp khu thương mại - công nghiệp Kim Thành
Phía Nam giáp đường Lương Khánh Thiện
Phía Đông giáp sông Hồng
Phía Tây giáp đường Điện Biên (đường A3)

3. Cơ sở hạ tầng
Hệ thống cung cấp điện: từ đường dây lưới điện 35Kv ở trạm biến áp 110Kv công suất lớn do nhà máy điện khu công nghiệp cung cấp
Hệ thống cung cấp nước: đáp ứng đủ nhu cầu sinh hoạt cũng như các hoạt động sản xuất khác với công suất lớn do nhà máy cấp nước khu công nghiệp Bắc Duyên Hải cung cấp
Hệ thống xử lý nước thải: Nước thải từ những nhà máy trong khu công nghiệp cũng như sinh hoạt sẽ được xử lý qua trạm xử lý rác thải tập trung với công suất lớn sau đó mới được thải ra ngoài tự nhiên.
Hệ thống viễn thông và internet: được lắp đặt hệ thống của mạng lưới theo tiêu chuẩn quốc tế, tiên tiến giúp liên lạc cả trong nước lẫn ngoài nước.
Đường giao thông nội khu: gồm có đường nội bộ 2 làn và 2 đường chính 4 làn đảm bảo cho các xe có phân khối lớn có thể đi vào.
Hệ thống phòng cháy chữa cháy: được lắp cạnh hệ thống nước sạch nhằm đảm bảo tính an toàn cho khu công nghiệp.
4. Các ngành nghề thu hút đầu tư
Ngành nghề thu hút đầu tư tại KCN Bắc Duyên Hải:
Thủ công mỹ nghệ: Sản xuất các sản phẩm thủ công phục vụ tiêu dùng và xuất khẩu.
Cơ khí – sửa chữa: Gia công cơ khí; sửa chữa ô tô, máy công trình.
Sản xuất hàng tiêu dùng: Đồ gia dụng và các sản phẩm phục vụ sinh hoạt.
Máy móc nông – lâm nghiệp: Sản xuất, lắp ráp thiết bị phục vụ sản xuất nông nghiệp.
Điện tử – điện lạnh: Sản xuất, lắp ráp và sửa chữa thiết bị điện tử, điện lạnh.
Dịch vụ – kho bãi: Dịch vụ logistics, lưu trữ và trung chuyển hàng hóa.

5. Ưu đãi đầu tư
Thuế thu nhập doanh nghiệp: Doanh nghiệp được miễn 100% thuế TNDN trong 04 năm đầu, giảm 50% tiền thuế trong 09 năm tiếp theo.
Thuế nhập khẩu: Miễn thuế nhập khẩu đổi với các hàng hóa được nhập khẩu để tạo lập tài sản cố định cho dự án.
Khu công nghiệp Bắc Duyên Hải – Lào Cai là khu công nghiệp có quy mô phù hợp, vị trí thuận lợi và định hướng phát triển các ngành công nghiệp sạch. Với lợi thế kết nối khu kinh tế cửa khẩu và hạ tầng đang được hoàn thiện, khu công nghiệp được kỳ vọng sẽ góp phần thúc đẩy phát triển kinh tế địa phương và thu hút các nhà đầu tư trong thời gian tới.
Ngoài ra, tại chuyên mục Tra cứu KCN của VietnamIZ cũng thường xuyên cập nhật những thông tin dự án Khu công nghiệp nhanh chóng, chính xác nhất. Truy cập các chuyên mục trên website để cập nhật thông tin mới nhất về quy hoạch chung và tin tức nóng hổi từ thị trường bất động sản Khu công nghiệp toàn quốc.
VietnamIZ
Nền tảng tra cứu dữ liệu Công nghiệp, Khu công nghiệp liên thông Quy hoạch – Dự án – Giá đất.
Big Data chính xác, phong phú, minh bạch cho nhà đầu tư và mọi đối tượng khách hàng
Hotline: 0961.85.0990
