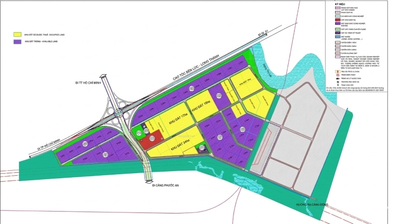
Bản đồ quy hoạch sử dụng đất Khu công nghiệp Phước An, Xã Phước An, Tỉnh Đồng Nai
Dự án Khu công nghiệp (KCN) Phước An tại huyện Nhơn Trạch, tỉnh Đồng Nai được định hướng xây dựng thành khu công nghiệp hiện đại, đồng bộ về hạ tầng kỹ thuật và phù hợp với chiến lược phát triển công nghiệp của địa phương. Bài viết sau sẽ cập nhật chi tiết thông tin bản đồ quy hoạch sử dụng đất, các hạng mục công trình và lộ trình triển khai dự án

Theo Báo cáo đánh giá tác động môi trường của dự án đầu tư xây dựng và kinh doanh kết cấu hạ tầng Khu công nghiệp Phước An, dự án được triển khai với mục tiêu xây dựng và kinh doanh kết cấu hạ tầng khu công nghiệp tại tỉnh Đồng Nai, tạo quỹ đất công nghiệp phục vụ các nhà đầu tư trong và ngoài nước.
Một số thông tin chính của dự án gồm:
Tên dự án: Đầu tư xây dựng và kinh doanh kết cấu hạ tầng Khu công nghiệp Phước An
Thời gian thực hiện: từ năm 2025 - 2030
Hoàn thành thủ tục đầu tư: dự kiến Quý III/2025
Khởi công xây dựng: dự kiến Quý IV/2025
Hoàn thành và đưa vào hoạt động: dự kiến Quý IV/2030
Khi hoàn thành, khu công nghiệp này sẽ góp phần mở rộng không gian phát triển công nghiệp của tỉnh Đồng Nai, đồng thời tạo điều kiện thuận lợi để thu hút các dự án sản xuất quy mô lớn.
Quý III/2025: Hoàn thành toàn bộ thủ tục pháp lý về đầu tư.
Quý IV/2025: Khởi công xây dựng hạ tầng kỹ thuật (Đường giao thông, hệ thống thoát nước, trạm điện).
Giai đoạn 2025 - 2030: Hoàn thiện các hạng mục công trình phụ trợ và cây xanh.
Quý IV/2030: Chính thức đưa dự án vào hoạt động và bàn giao cho các nhà đầu tư thứ cấp.

Khu công nghiệp Phước An được quy hoạch tại xã Phước An, tỉnh Đồng Nai, nằm trong khu vực có nhiều lợi thế về hạ tầng giao thông và kết nối logistics.
Ranh giới khu vực thực hiện dự án được xác định cụ thể như sau:
Phía Tây Bắc giáp cao tốc Bến Lức - Long Thành
Phía Nam giáp đất quy hoạch hành lang tuyến điện 500 kV và 220 kV Nhà máy nhiệt điện Nhơn Trạch - Phú Mỹ
Phía Đông giáp sông Thị Vải và tuyến đường sắt quy hoạch
Phía Tây giáp đất tự nhiên thuộc xã Phước An
Với vị trí gần các tuyến giao thông quan trọng và hệ thống cảng biển khu vực Nhơn Trạch - Thị Vải, khu công nghiệp Phước An được đánh giá có nhiều tiềm năng phát triển trong lĩnh vực sản xuất và logistics.
Theo quy hoạch, tổng diện tích Khu công nghiệp Phước An khoảng 330 ha với nhiều chức năng sử dụng đất khác nhau nhằm đảm bảo hoạt động sản xuất và hạ tầng kỹ thuật trong khu công nghiệp.
Cơ cấu sử dụng đất trong khu công nghiệp bao gồm:
| STT | Hạng mục sử dụng đất | Diện tích (ha) | Tỷ trọng (%) |
| 1 | Đất sản xuất công nghiệp, kho bãi | 245,02 | 74,25% |
| 2 | Đất cây xanh, mặt nước | 37,52 | 11,37% |
| 3 | Đất giao thông nội khu | 34,94 | 10,59% |
| 4 | Khu dịch vụ điều hành | 8,77 | 2,66% |
| 5 | Đất hạ tầng kỹ thuật | 3,75 | 1,13% |
| - | Tổng diện tích dự án | 330,00 | 100% |
Việc phân bổ các loại đất trong khu công nghiệp nhằm đảm bảo tính đồng bộ về hạ tầng, đáp ứng nhu cầu sản xuất công nghiệp cũng như các yêu cầu về môi trường và cảnh quan.
Dưới đây là bản đồ quy hoạch sử dụng đất Khu công nghiệp Phước An tại xã Phước An, tỉnh Đồng Nai (tham khảo).

Theo Điều 6 Nghị định 35/2022/NĐ-CP, việc đầu tư hạ tầng và thành lập khu công nghiệp được quy định với nhiều nội dung quan trọng.
Khu công nghiệp có thể được đầu tư theo nhiều loại hình khác nhau như:
Khu công nghiệp
Khu chế xuất
Khu công nghiệp hỗ trợ
Khu công nghiệp chuyên ngành
Khu công nghiệp sinh thái
Khu công nghiệp công nghệ cao
Đối với các khu công nghiệp nằm trong khu kinh tế, quy hoạch khu công nghiệp sẽ được tổng hợp vào quy hoạch chung xây dựng khu kinh tế và trình cấp có thẩm quyền phê duyệt theo quy định của pháp luật về xây dựng.
Ngoài ra, điều kiện, trình tự và thủ tục đầu tư hạ tầng khu công nghiệp được thực hiện theo quy định tại Nghị định 35/2022/NĐ-CP và các quy định pháp luật có liên quan.
Mỗi khu công nghiệp có thể có một hoặc nhiều chủ đầu tư hạ tầng, chịu trách nhiệm đầu tư xây dựng và kinh doanh kết cấu hạ tầng khu công nghiệp.
Khu công nghiệp được xác định là đã được thành lập khi cơ quan có thẩm quyền:
Quyết định chủ trương đầu tư dự án hạ tầng khu công nghiệp sử dụng vốn đầu tư công; hoặc
Chấp thuận chủ trương đầu tư đồng thời chấp thuận nhà đầu tư; hoặc
Cấp Giấy chứng nhận đăng ký đầu tư cho dự án xây dựng và kinh doanh kết cấu hạ tầng khu công nghiệp.

Theo khoản 4 Điều 202 Luật Đất đai 2024, thời hạn sử dụng đất đối với các dự án đầu tư trong khu công nghiệp được xác định theo thời hạn hoạt động của dự án đầu tư.
Trong trường hợp thời hạn hoạt động của dự án dài hơn thời hạn sử dụng đất còn lại của khu công nghiệp, chủ đầu tư phải thực hiện thủ tục xin điều chỉnh thời hạn sử dụng đất với cơ quan nhà nước có thẩm quyền.
Tuy nhiên, tổng thời hạn sử dụng đất sau khi điều chỉnh không được vượt quá 70 năm, đồng thời nhà đầu tư phải thực hiện nghĩa vụ tài chính đối với phần diện tích đất được gia hạn.
Với vị trí thuận lợi của Khu công nghiệp Phước An, gần các tuyến giao thông lớn và hệ thống cảng biển khu vực, khu công nghiệp này được kỳ vọng sẽ trở thành điểm đến hấp dẫn đối với các nhà đầu tư, góp phần thúc đẩy phát triển kinh tế và công nghiệp của tỉnh Đồng Nai trong thời gian tới.