Giới thiệu
Tổng quan dự án Khu công nghiệp Bắc Thạch Hà
Giá thuê: Thỏa thuận
Tên: Khu Công nghiệp Bắc Thạch Hà
Vị trí: xã Thạch Liên và xã Việt Tiến, huyện Thạch Hà, tỉnh Hà Tĩnh
Diện tích: 190,41 ha
Chủ đầu tư: Công ty Cổ phần Tập đoàn Hoành Sơn
Thời gian vận hành: 50 năm (2023 – 2073)
Tỷ lệ lấp đầy: 5%
Ngành nghề thu hút đầu tư: Sản xuất thiết bị điện, sản phẩm điện tử; sản xuất ô tô, xe có động cơ và các phương tiện vận tải khác; sản xuất thuốc, hoá dược, dược liệu; sản xuất hoá chất và sản phẩm hoá chất; sản xuất sản phẩm từ khoáng phi kim loại khác; sản xuất trang phục, may mặc…
Phối cảnh tại Khu công nghiệp Bắc Thạch Hà
Vị trí địa lý của KCN Bắc Thạch Hà
Khu Công nghiệp Bắc Thạch Hà thuộc xã Thạch Liên và xã Việt Tiến, huyện Thạch Hà, tỉnh Hà Tĩnh
Kết nối vùng
Phía Bắc: giáp Quốc lộ 1 và Khu dân cư xã Thạch Liên
Phía Đông: giáp khu dân cư xã Việt Tiến và xã Thạch Liên
Phía Tây: giáp đất nông nghiệp và quy hoạch đường sắt tốc độ cao
Phía Nam: giáp Quốc lộ 15B và đất nông nghiệp xã Việt Tiến
Cơ sở hạ tầng của KCN Bắc Thạch Hà
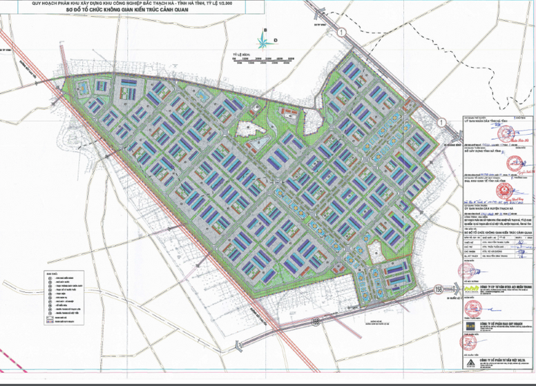
Khu công nghiệp Bắc Thạch Hà giai đoạn 1 được thực hiện trên diện tích 190,41 ha với tổng mức đầu tư là 1.555,5 tỷ đồng. Khu Công nghiệp Bắc Thạch Hà xây dựng với các hạng mục sử dụng đất bao gồm: Đất sản xuất công nghiệp kho bãi 122,3 ha; đất giao thông 27,7 ha; đất cây xanh và mặt nước 17,3 ha; phần còn lại dành cho đất tiện ích công cộng, dịch vụ và kho bãi.
Tổng thể mặt bằng của dự án KCN Bắc Thạch Hà
Mặt bằng tổng thể của KCN Bắc Thạch Hà
Tổng kết
Với những thông tin VietnamIZ đã chia sẻ ở trên, chắc hẳn đã giúp được các bạn đọc có được một cái nhìn tổng quan hơn về dự án Khu công nghiệp Bắc Thạch Hà . Nơi đây hứa hẹn sẽ mang đến những sản phẩm khu công nghiệp cùng chuỗi hệ thống hạ tầng kỹ thuật hiện đại, an toàn .
Ngoài ra, tại chuyên mục Tra cứu KCN của VietnamIZ cũng thường xuyên cập nhật những thông tin dự án Khu công nghiệp nhanh chóng, chính xác nhất. Truy cập các chuyên mục trên website để cập nhật thông tin mới nhất về quy hoạch chung và tin tức nóng hổi từ thị trường bất động sản Khu công nghiệp toàn quốc.
VietnamIZ
Mặt bằng
Tiện ích KCN
- Ghế công cộng
- Khu vực để xe máy
- Khu vực để ô tô
- Nhà cộng đồng
- An ninh bảo vệ
- Hệ thống PCCC
- Camera giám sát







