






Ảnh
Video
VR 360
Xem QH
Tổng quan dự án KCN Bá Thiện I
Tên: Khu công nghiệp Bá Thiện I - Tỉnh Vĩnh Phúc
Tổng diện tích: 325.75ha
Địa chỉ: Xã Thiện Kế và thị trấn Bá Hiến, Huyện Bình Xuyên, Tỉnh Vĩnh Phúc
Chủ đầu tư: Công ty cổ phần Phát triển và Kinh doanh nhà (HDTC)
Thời hạn vận hành: 12/2067 - Thời điểm thành lập: 08/2021
Giá: 170 USD/m2 Giá chưa bao gồm VAT
Mật độ XD (%): 60 (%)
Tỷ lệ lấp đầy: Tỷ lệ lấp đầy: 25%
Phối cảnh Khu công nghiệp Bá Thiện I
Vị trí địa lý KCN
Về vị trí liên kết vùng, KCN Bá Thiện phân khu 1 có vị trí nằm tiếp giáp với tuyến vành đai 4 của thành phố Hà Nội, đường tỉnh 310B, gần tuyến cao tốc Hà Nội - Lào Cai và:
Cách sân bay quốc tế Nội Bài 23 km
Cách trung tâm thành phố Hà Nội 50 km; cách trung tâm thành phố Vĩnh Yên 15 km
Cách cảng Đình Vũ Hải Phòng 150 km; cách cảng nước sâu Cái Lân 180 km
Cách nút giao cao tốc Hà Nội - Lào Cai 6 km
Vị trí liên kết vùng giao thông
Cơ sở hạ tầng KCN
Hệ thống cấp điện: nguồn cấp điện sản xuất cho KCN Bá Thiện được lấy từ trạm biến áp 110/22kV Thiện kế có công suất 2*63 MVA thông qua các đường dây 22 kV được đi nổi và đấu nối tới từng lô đất trong khu công nghiệp
Hệ thống cấp nước: Khu công nghiệp Bá Thiện được đầu tư xây nhà máy xử lý và cung cấp nước sạch với công suất 14.000 m3/ngày đêm. Hệ thống cấp nước được thiết kế chạy dọc các tuyến đường giao thông trong khu công nghiệp với đường ống HDPE có kính tích từ D110-D280mm được đấu nối tới chân tường rào của từng nhà máy trong khu công nghiệp.
Hệ thống xử lý nước thải: toàn bộ nước thải sản xuất tại khu công nghiệp Bá Thiện được thu gom, xử lý bằng công nghệ phù hợp với đặc thù sản xuất tại nhà máy xử lý nước thải tập trung ra tới tiêu chuẩn A trước khi xả thải ra môi trường. Nhà máy xử lý nước thải tập trung có tổng công suất theo thiết kế là 15.000 m3/ngày đêm (chia làm 3 giai đoạn, trong đó công suất giai đoạn 1 là 5.000 m3/ngày đêm).
Hệ thống đường giao thông nội khu: đường trục chính trong khu công nghiệp là đường đôi có chiều rộng 40 m, các đường nhánh trong khu công nghiệp có chiều rộng từ 12 m đến 25 m. Đường giao thông được xây dựng với mặt trải nhựa, được bố trí hệ thống chiếu sáng, vỉa hè và cây xanh.
Hệ thống PCCC: hệ thống cấp nước chữa cháy được kết hợp với hệ thống cấp nước sạch sản xuất, các họng nước chữa cháy được bố trí với khoảng cách từ 120 m - 150 m mỗi trụ dọc theo các tuyến đường trong khu công nghiệp Bá Thiện 1.
Hệ thống thông tin liên lạc: mạng cáp quang được cung cấp bởi nhiều nhà mạng như VNPT, Viettel, FPT được kết nối hoàn chỉnh, đi ngầm thông qua các cống cáp kỹ thuật dọc theo vỉa hè của các tuyến đường và được kế nối tới từng lô đất trong KCN theo yêu cầu của nhà đầu tư. Tổng số đầu số liện lạc dự kiến hơn 2.300 lines.
Tiện ích hạ tầng khác: hệ thống đèn điện chiếu sáng; trung tâm điều hành; cây xanh, công viên, mặt nước; hệ thống bến bãi đỗ xe; hệ thống thoát nước mưa độc lập với hệ thống thoát nước thải.
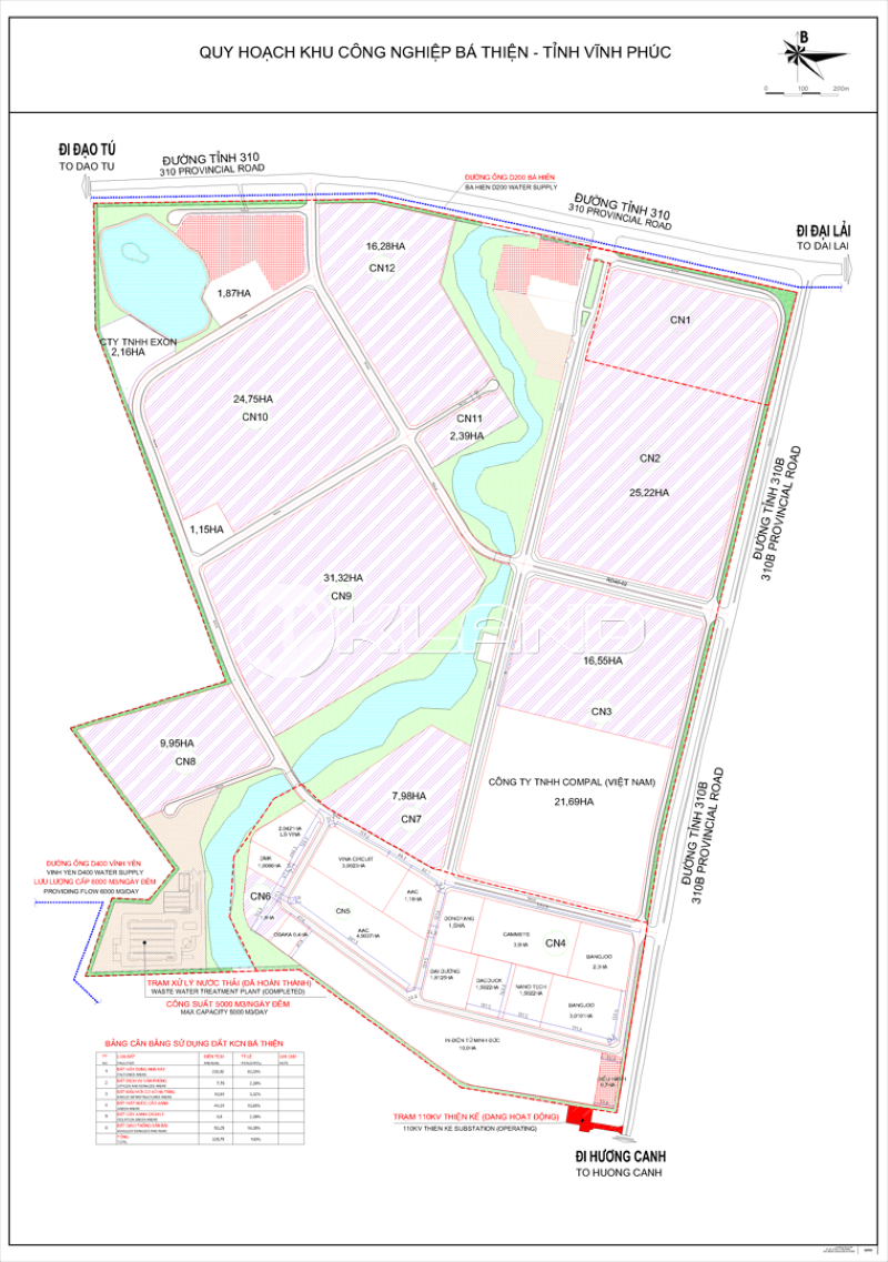
Mặt bằng tổng thể KCN
Mặt bằng KCN
Tổng kết
Với những thông tin VietnamIZ đã chia sẻ ở trên, chắc hẳn đã giúp được các bạn đọc có được một cái nhìn tổng quan hơn về dự án Khu công nghiệp Bá Thiện I . Nơi đây hứa hẹn sẽ mang đến những sản phẩm khu công nghiệp cùng chuỗi hệ thống hạ tầng kỹ thuật hiện đại, an toàn .
Ngoài ra, tại chuyên mục Tra cứu KCN của VietnamIZ cũng thường xuyên cập nhật những thông tin dự án Khu công nghiệp nhanh chóng, chính xác nhất. Truy cập các chuyên mục trên website để cập nhật thông tin mới nhất về quy hoạch chung và tin tức nóng hổi từ thị trường bất động sản Khu công nghiệp toàn quốc.
